Rekonstrukce domu

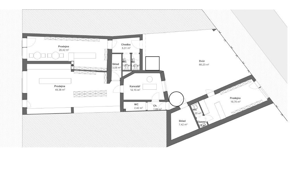
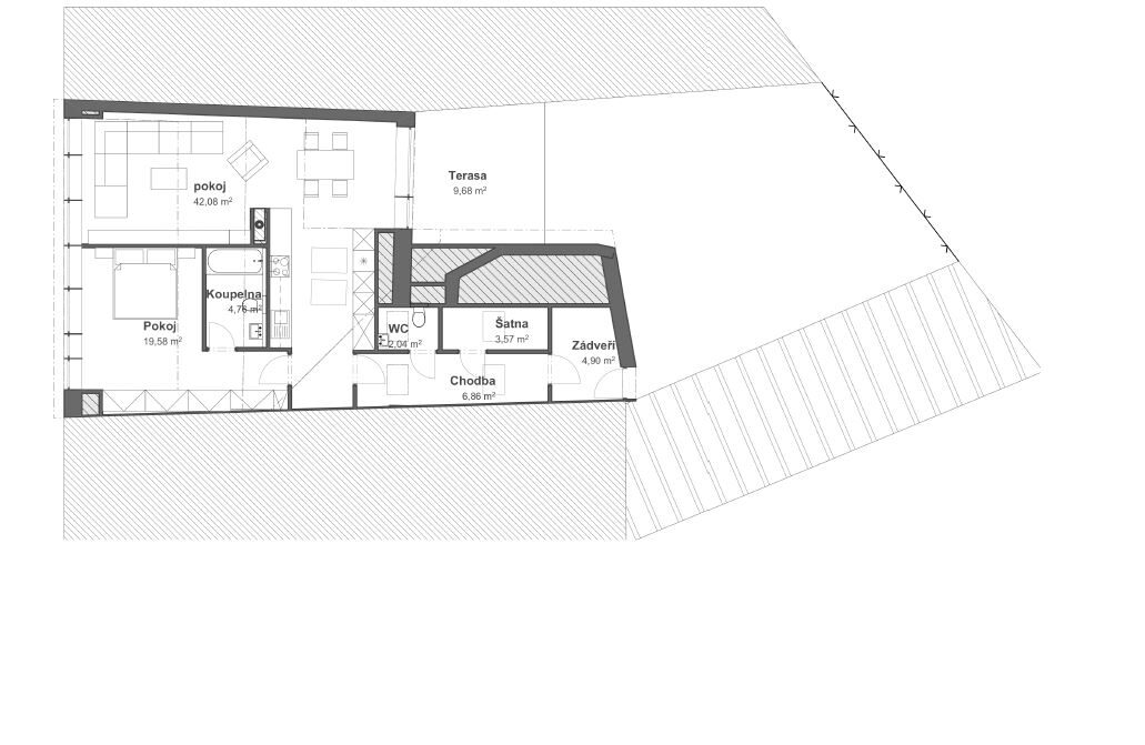
Přestavba původního řadového domu v historické zástavbě Bystřice pod Hostýnem se zaměřuje na obnovu dispozice, zvýšení prostupnosti světla a využití podkroví. Návrh vytváří tři komerční jednotky a byt v podkroví, doplněný vikýři směrem do ulice i zahrady. Očištění dispozice, akcentace masivního krovu a otevření obytných prostor podporují soudobý způsob užívání. Hospodářský dvůr se proměňuje v rekreační zahradu. Návrh uplatňuje střídmou barevnost a respekt k původnímu měřítku stavby.

Zpráva odeslána

Vaše zpráva byla úspěšně odeslána.