Studie městského domu Becher
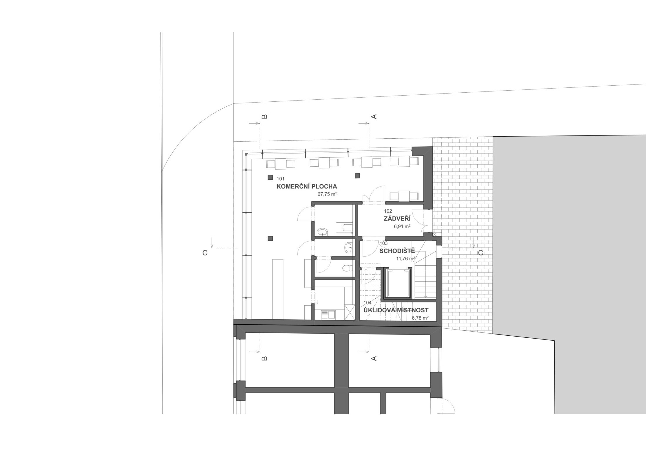
Studie městského domu Becher vznikla na základě úzké spolupráce s investorem a reaguje na urbanistický i historický kontext lokality. Nárožní objekt se sedmi nadzemními podlažími respektuje tvarové a materiálové charakteristiky okolní zástavby a doplňuje uliční frontu bez narušení jejího architektonického rázu. Hmotové řešení vychází z půdorysu parcely, konstrukční systém tvoří železobetonový skelet s centrálním jádrem. Elegantní výraz budovy podporuje lehká zavěšená skleněná fasáda. Plochá střecha slouží jako technická a pochozí plocha pro umístění technologií. Celková výška objektu přibližně 23,3 m odpovídá městskému měřítku lokality.



