Interiér FEI

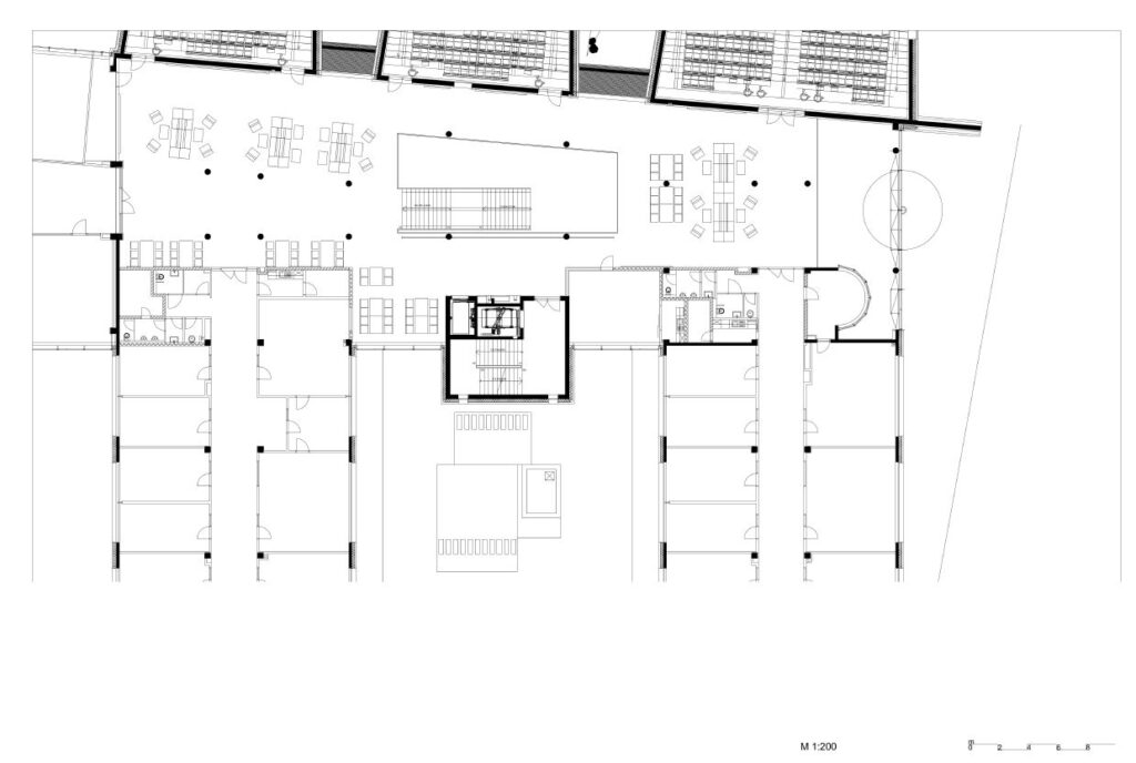
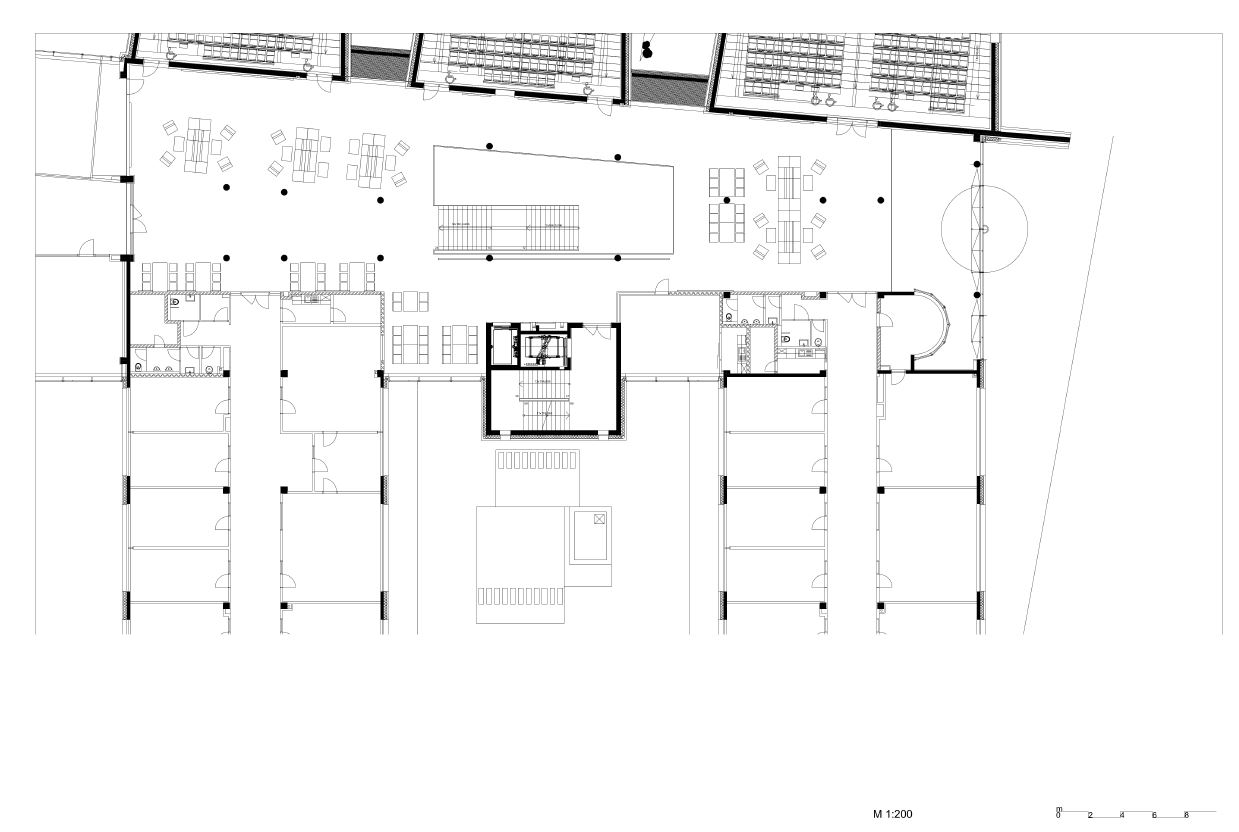
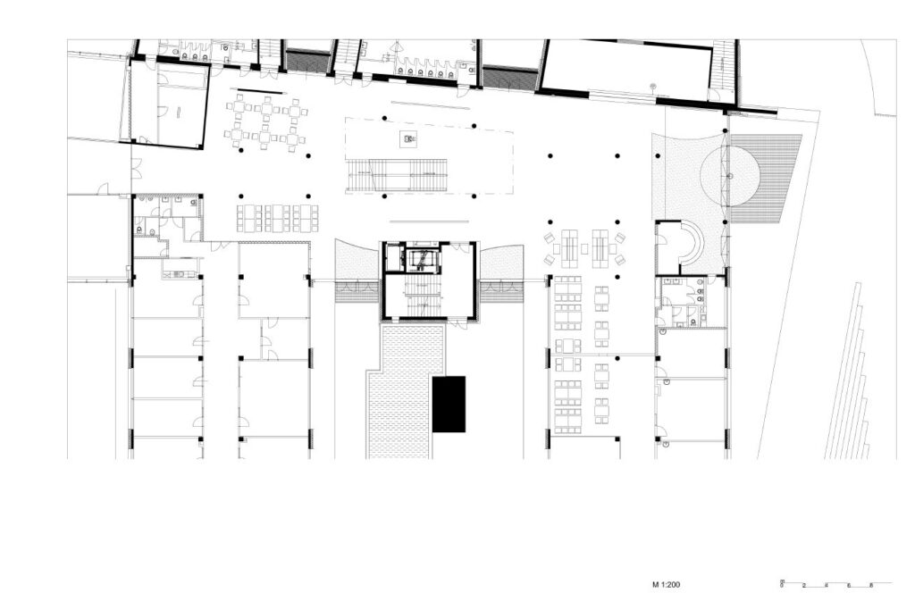
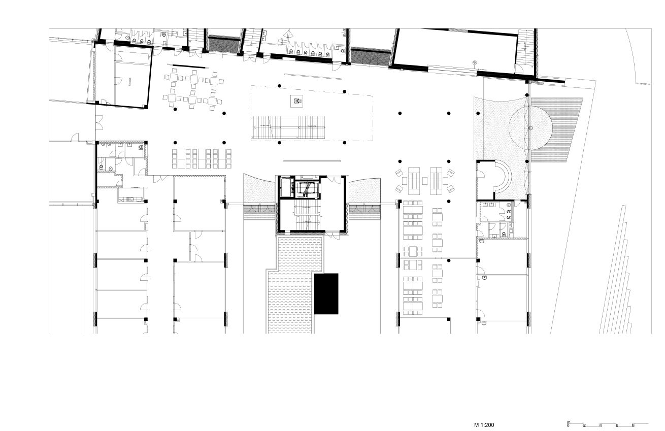
Rekonstrukce vybraných interiérů fakulty FEI vytváří reprezentativní a nadčasové prostředí. Koncept spojuje bílé povrchy s nerezem a kontrastní tmavou podlahou, doplněné čalouněním v jemných akcentovaných odstínech vycházejících z vizuální identity fakulty. Návrh využívá maximum přirozeného světla a sjednocuje jednotlivé podlaží pomocí konzistentních sedacích prvků. Výrazným motivem je kontrast hladkých ploch a odrazů materiálů. Součástí řešení je i kultivace prostoru galerie, která posiluje společenský charakter fakulty.

Zpráva odeslána

Vaše zpráva byla úspěšně odeslána.