Interiér bytu Praha
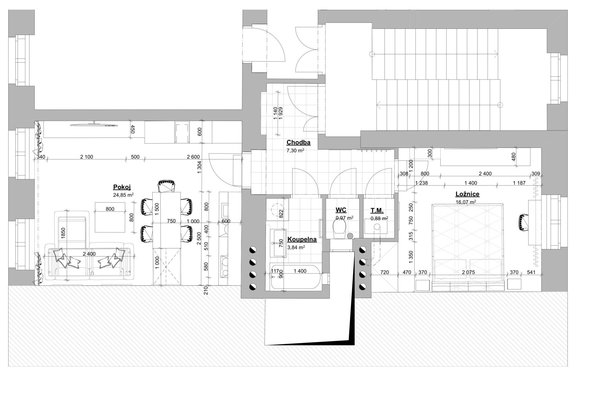
Rekonstrukce bytu v historickém domě proměňuje původní dispozici 1+1 na moderní 2+kk a navazuje na historickou atmosféru lokality. Interiér kombinuje obnovu původních prvků, jako jsou kastlová okna a dvoukřídlé dveře, s moderními zásahy – technickou místností, novou vzduchotechnikou a otevřeným dispozičním řešením. Materiálová paleta spojuje tradiční prvky a současné prvky s důrazem na světlost a vzdušnost. Návrh reflektuje aktuální trendy v rekonstrukcích historických bytů.




