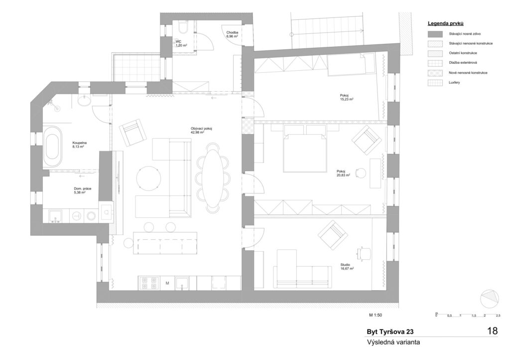
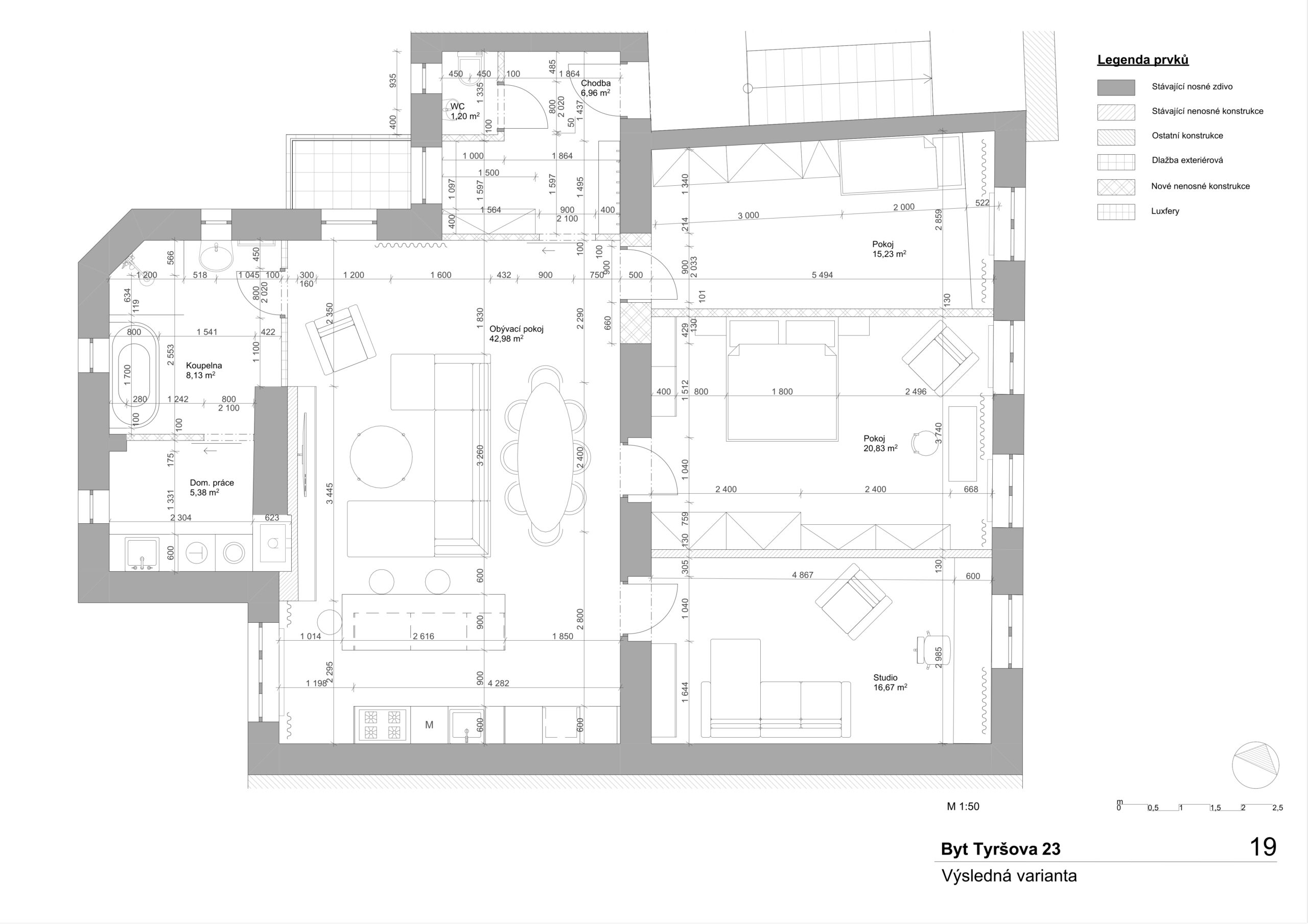
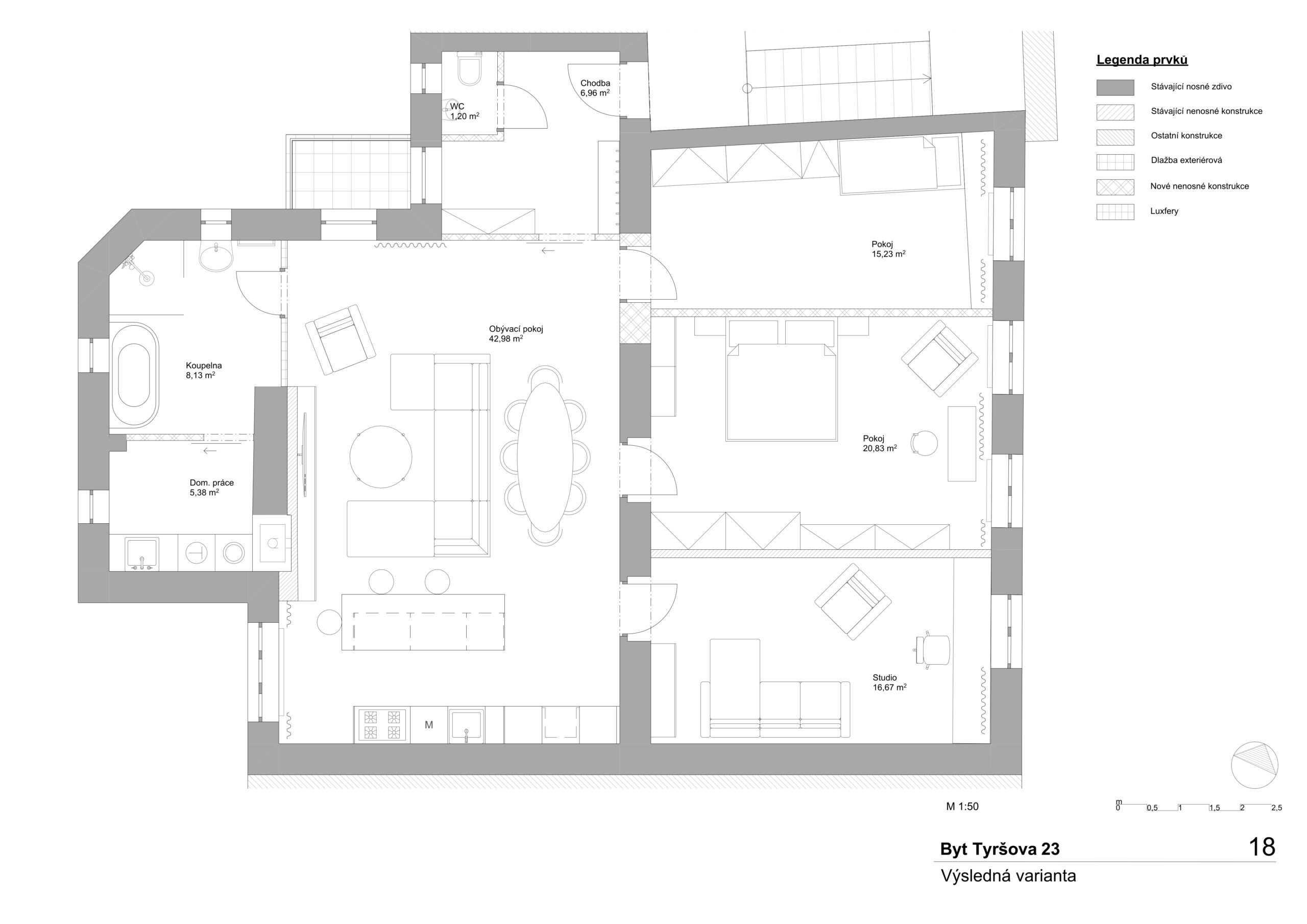
Byt Tyršova 23
Architektonická studie interiéru se zabývá dispoziční a prostorovou transformací bytu v historické zástavbě centra Ostravy, jehož původní uspořádání neodpovídalo současným požadavkům na bydlení. Návrh vychází z potřeby zpřehlednění provozních vazeb, oddělení veřejné a soukromé zóny a vytvoření centrálního obytného prostoru jako hlavního společenského jádra bytu.
Nové dispoziční řešení pracuje s prostornou vstupní halou, na kterou navazuje otevřený obytný prostor integrující obývací pokoj, jídelnu a kuchyň. Východní část bytu orientovaná do klidné ulice je koncipována jako soukromá zóna s ložnicí, dětským pokojem a pracovnou. Západní strana orientovaná do vnitrobloku soustřeďuje hygienické a technické zázemí bytu. Prosvětlení koupelny je řešeno prostřednictvím luxferové příčky, která umožňuje přívod denního světla při zachování soukromí. Studie usiluje o vytvoření současného a funkčně efektivního bydlení při respektování měřítka a charakteru historické struktury domu.





